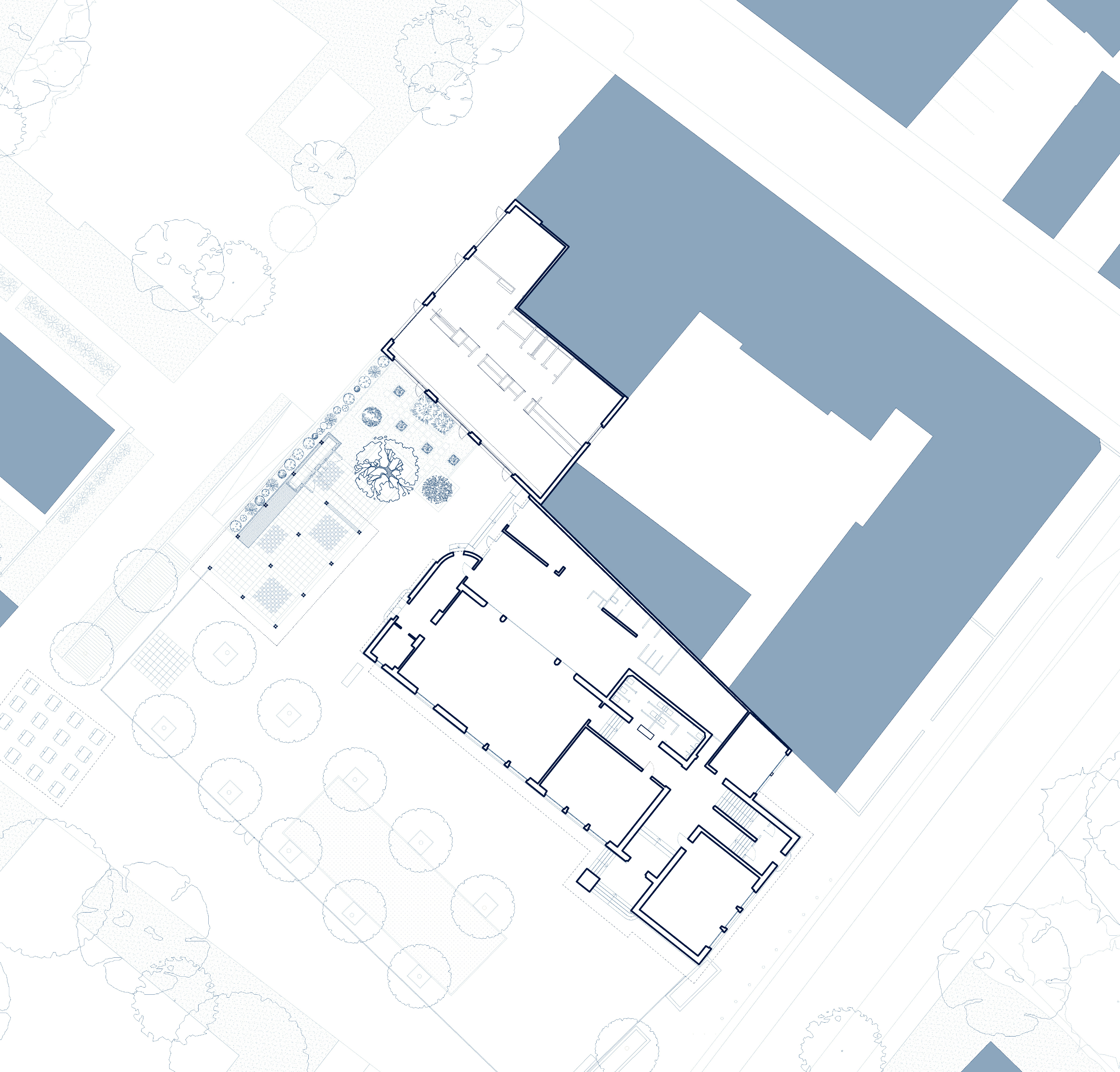
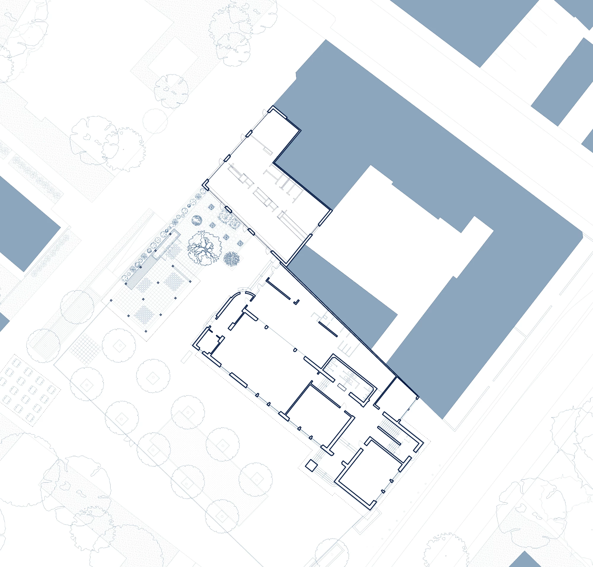
École de la place Favre

Restructuration du préau et construction d’un couvert

Fiche détailléeDescription

Janvier 2022 Début des études
Juin 2023 Autorisation
Juillet 2024 Ouverture du chantier
Mars 2025 Inauguration

Chêne-Bourg